Dibla Design Awards 2025: Кои са водещите имена в българския интериорен дизайн тази година?
На 19 февруари 2025 г. Интер Експо Център в София се превърна в сцена на бляскавата церемония по връчването на годишните награди за интериорен дизайн — Dibla Design Awards 2025. Събитието събра над 500 гости, сред които архитекти, дизайнери, инвеститори, медийни представители и ентусиасти, за да отбележи най-иновативните дизайн проекти в България. Ежегодната церемония отличава постижения в категории за обществени и жилищни проекти, подчертавайки креативността и професионализма на българските дизайнери.

Жури и процес на оценяване
Процесът на подаване на проекти изисква дизайнерите да се регистрират в платформата на Dibla, да качат своите проекти с подробни описания и планове, както и да изберат съответната категория за участие. Уважавано международно жури, съставено от водещи дизайнери, архитекти и експерти в индустрията, оцени подадените проекти въз основа на критерии като оригиналност, функционалност, устойчивост и цялостно въздействие на дизайна. Разнообразният опит на членовете на журито гарантира обективна и справедлива оценка на всеки проект. Тази година журито се състоеше от следните имена:
Джовани Отонело (творчески директор на Европейския институт по дизайн; Италия); Мартин Цанков (индустриален дизайнер, интериорен архитект; България, Испания); Арх. Мила Иванова (архитект, съосновател на архитектурно студио Cache Atelier, носители на наградата “Дизайнер на годината” за 2023); Красимир Капитанов (дизайнер на 2018 година, преподавател); Хасегава Аой (дизайнер, преподавател, Япония); Д-р Сибс Бауер MA(RCA) (дизайнер, Германия); Проф. д-р арх. Орлин Давчев (архитект, декан на Архитектурен факултет при УАСГ); Чън Симу (дизайнер, Преподавател, Китай); Проф. д-р Васил Живков (преподавател, България); Симоне Бонанни (продуктов дизайнер, преподавател, Италия / Представители на ИЕД – Европейския институт за дизайн); Радина Гешева (архитект); Aрх. Пламен Братков (архитект, преподавател); Цветана Шипкова (главен редактор на списание „Наш дом“); Илиан Милинов (дизайнер); Марин Керемидски (архитект, България/Китай); Иво Димитров (представител на DIBLA, България).
Наградите в категория “Жилищен интериор”
В категорията бяха отличени проекти, демонстриращи високо ниво на креативност и функционалност в частните жилищни пространства.
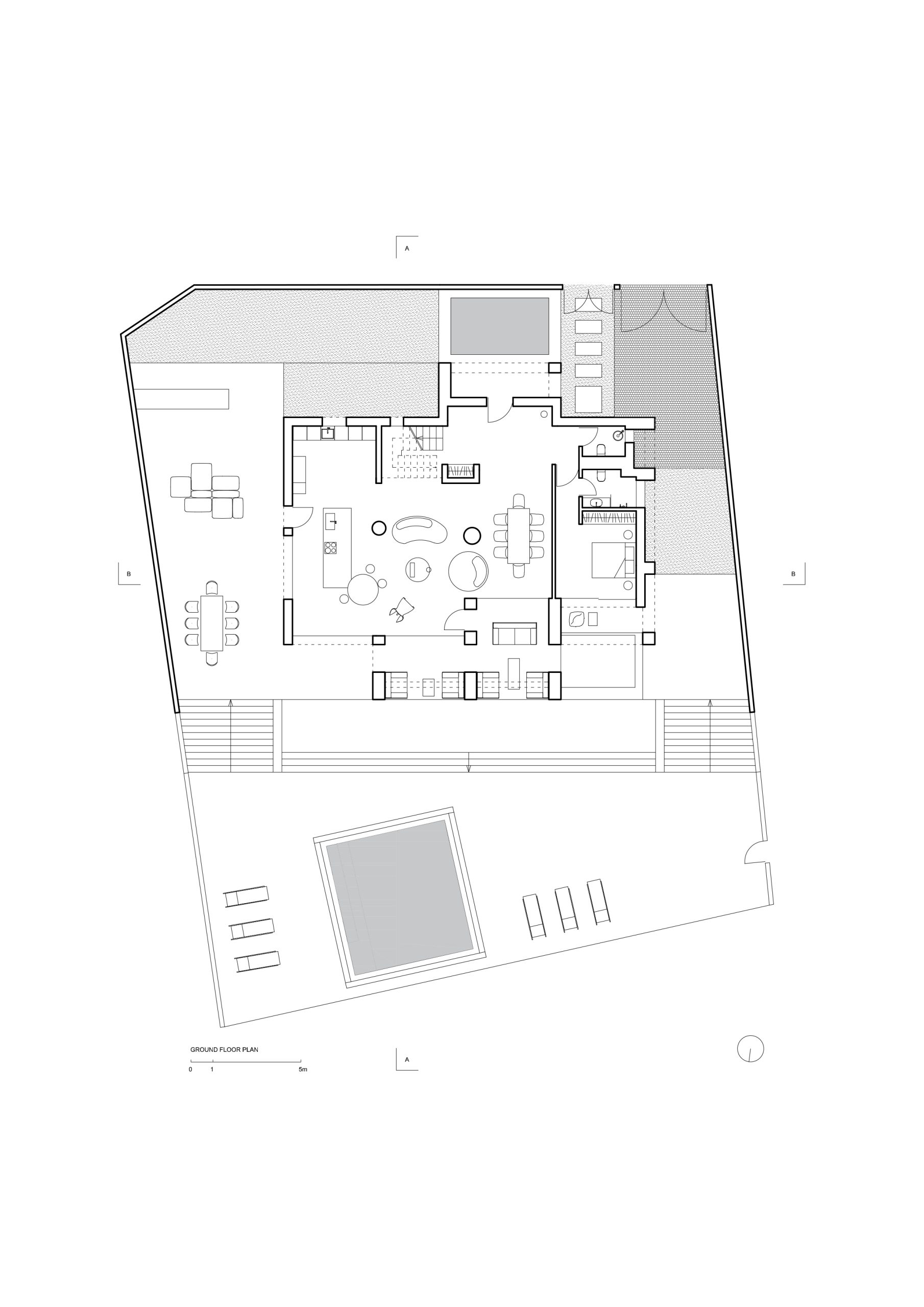
В подкатегорията “Фамилна къща” наградата бе присъдена на “Villa Bianca” на студио Simple Architecture – проект, който превръща традиционна къща с характерен созополски облик в минималистично и съвременно архитектурно бижу. Белият цвят доминира както във фасадата, така и в интериора, създавайки усещане за простор и хармония, докато внимателно подбраните мебели и художествени произведения превръщат къщата в своеобразна арт галерия, в която архитектурата остава фон за природата и изкуството.

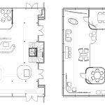
В подкатегорията “Апартамент до 60 кв.м.” наградата бе присъдена на “Апартамент ML” от студио Motif Architecture. Този проект впечатлява с интелигентни решения за оптимизация на пространството, като премахване на антрето за създаване на повече място за съхранение и интегриране на трапезната маса в кухненския модул, което придава усещане за простор и функционалност.

В подкатегорията “Апартамент над 60 кв.м.” победител стана “Апартамент K07” на студио dontDIY. Този high-end интериор се отличава с елегантен съвременен дизайн, богата, но сдържана палитра от материали и високотехнологични решения. Характерни са детайли като дъбов паркет в шевронен модел и фини вертикални ламели, които придават уникален характер на пространството.
Наградите в категория “Обществен интериор”
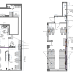
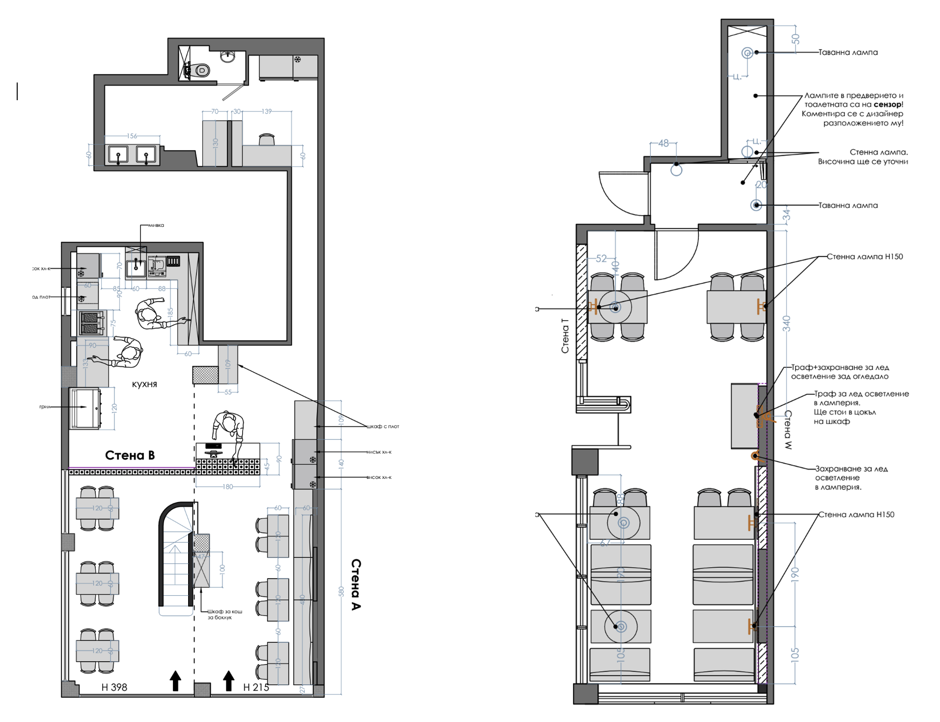
В подкатегорията “Ресторант” наградата бе присъдена на “In a Bun” на Крафтекдизайн– проект, който впечатлява с иновативен подход към интериорния дизайн на заведения за хранене. Дизайнът съчетава модерна естетика с уютна атмосфера, създавайки привлекателно пространство за посетителите.

В подкатегорията “Магазин, шоурум, изложбена зала” Иво Петров Архитекти спечели с интериорния си дизайн за мултифункционална зала в Synergy Tower в партньорство с Bosch. Първоначално проектирана като конферентна зала, тя се трансформира в интерактивна среда. Концепцията за „жива лаборатория“ осигурява адаптивност и иновации. Пространството включва зони за събития, co-working, VR, изложби и тестове на E-bike и автомобили. Дизайнът, вдъхновен от Bosch, комбинира индустриална естетика с гъвкави конфигурации и високотехнологични материали.

В подкатегорията “Офис и работна среда” победител стана проектът “Novo Nordisk Sofia” на DA архитекти. Интериорните решения се отличават с функционално разпределение и съвременен дизайн, който отразява корпоративната идентичност на компанията и създава комфортна работна среда за служителите.

В подкатегорията “Хотел” наградата бе присъдена на “Hotel Hello Plovdiv” на Simple Architecture. Проектът включва цялостна интериорна и екстериорна трансформация на съществуващ хотел в Пловдив.

В подкатегорията “Медико-дентални/разкрасителни” победител е “Face and Body Lab” на Nueva Architecture. Студиото за красота и здраве се отличава със съвременен интериор, съчетаващ елегантност, функционалност и модерна естетика. Дизайнът използва неутрални цветове, създавайки усещане за въздушност и чистота.
Големият победител на вечерта
Престижната награда “Дизайнер на годината” бе присъдена на архитектурното студио DA Architects. Това признание подчертава значителния принос на студиото за развитието и международното признание на българския интериорен дизайн.
DA Architects е студио, специализирано в архитектура и дизайн, което се стреми да търси различни и нови решения. Техният подход към дизайна се характеризира с иновации, внимание към детайла и стремеж към съвършенство, което им позволява да създават уникални и функционални пространства. През годините DA Architects са реализирали редица проекти, които са получили признание както в България, така и на международно ниво.
Акценти от церемонията
“Бъдете различни. Канелюрите уморяват.”
– Радина Гешева –
В духа на мотото на събитието е от съществено значение всеки дизайнер да запази своя уникален глас при работата с клиенти. Интерпретирането на тенденциите по индивидуален начин, без да се поддават на натиска да се следват масови решения, е ключово за създаването на автентични и вдъхновяващи пространства. Това не само че обогатява дизайнерската практика, но и гарантира, че всяко пространство носи уникалността и идентичността на своите обитатели.
Докато дизайнерската общност отразява отличените проекти тази година, Dibla Design Awards 2025 продължава да вдъхновява и повишава стандартите в интериорния дизайн, демонстрирайки изключителния талант и креативност, които определят българската дизайнерска сцена.


























































